CITÉ FLEURIE

Boulevard Arago, 75013 Paris

Programme

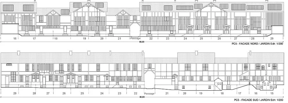
Ravalement des façades, réfection de la couverture et des verrières, remplacement des menuiseries extérieures pour cet ensemble immobiliers inscrit à l’inventaire des monuments historiques.

Montant des travaux

1,13 M€ HT

Maîtrise d’Ouvrage

DOMAXIS

Mission

Étude

Objectif

Amélioration du confort thermique.

Construit en 1888, les matériaux de construction de la Cité Fleurie provenaient du Pavillon de Hunebelle pour l’exposition universelle de 1878. La cité est composée de petits « pavillons » entourés de verdure et abrite 32 logements-ateliers d’artistes au sein d’un site protégé.